Reset
More options

Property Description

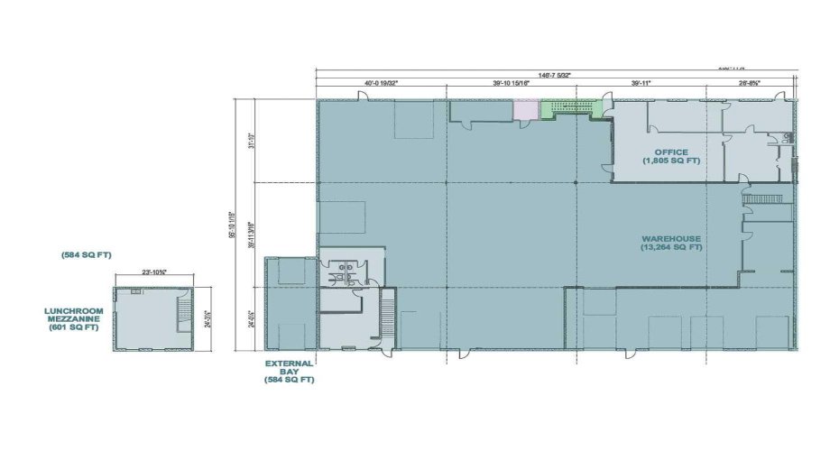
18,718 SF of industrial space, with the option to lease an additional ±33,000 SF of fenced yard. Substantial renovations underway – to be completed for May 1, 2026. The lease rate for the unit starts at $13.00 PSF, and the lease rate for the yard is $1.50 PSF. The industrial unit includes 5,454 SF of office space over two floors and 13,264 SF of warehouse space. The office layout features a showroom area with private offices, a reception area at the rear of the unit, and a lunchroom on the second floor. The warehouse boasts 21.5 ft ceilings, 7 drive-in doors with drive-through capability, and heavy power (to be determined). Operating Costs (estimated for 2025) are $9.63 PSF, which includes electricity, gas, water, and sewage. Additional second-floor space is available. Conveniently located near 32 Avenue NE, Barlow Trail NE, and Deerfoot Trail NE.

Address Map
Alberta
Calgary
Calgary
T2E 6V8
23
3501
Street
0
W115° 59' 39.8''
N51° 4' 58.8''
: North Airways
Unit 111, 3501 23 Street NE
E
MLS Addon
LLCDNGLOBAL

Commercial For Lease

3501 23 Street, Calgary, Alberta T2E 6V8

0 Bedrooms
0 Bathrooms
0 Sqft
Visits : 22 in 26 days
$13
Listing ID #A2215068
Basic Details
Property Type : Commercial
Property Sub Type : Industrial
Listing Type : For Lease
Listing ID : A2215068
Price : $13
Bedrooms : 0
Bathrooms : 0
Half Bathrooms : 0
Square Footage : 0 Sqft
Year Built : 1977
Lot Area : 0 Acre
Status : Active
Days On Market : 349
Agent info
Contact Agent