Reset
More options

Property Description

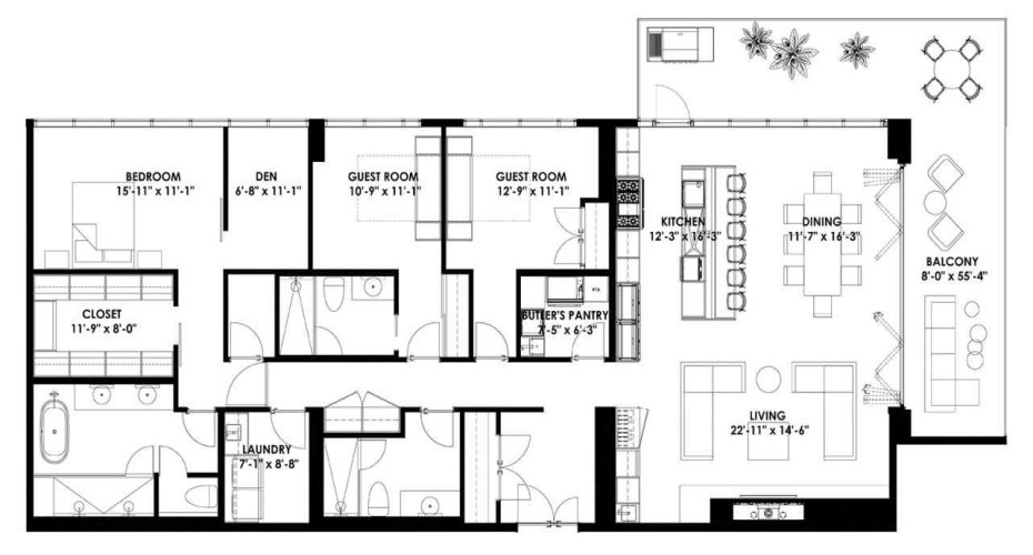
Welcome to your dream single-level Penthouse with your own private riverfront rooftop patio at The Kenten. Masterfully designed by architects Davignon and Martin, The Sable spans 96 feet of glass with 11 foot ceilings and both sunrise and sunset elevations. As you step in, you are greeted by a large living space with triple pane windows overlooking the river; featuring an beautiful kitchen, living, dining, and 450 square foot wrap around balcony, all designed to entertain your family and friends. Enjoy a gourmet kitchen with Sub-Zero & Wolf appliances, gas range, custom millwork, walk-in pantry, and fireplace that all flow towards your opening wall system. The large primary bedroom has an office/den, a large walk-in closet, and a 6-piece ensuite bathroom with a floating tub and heated floors., and a steam shower. The second bedroom come has it’s own ensuite bathroom, and a 3rd bedroom and bathroom complete the residence. The penthouse is accompanied by 2 bike racks, 2 titled storage lockers, and 3 titled parking stalls or garage conversion. There are 3 modern palettes to choose from that can be further customized to your liking. The Kenten features over 8,000 square feet of amenities including a sky lounge, gym overlooking Kensington, golf simulator, sauna, hot tub, concierge, guest suites, car wash, and more. Explore a simplified lock and leave lifestyle you didn’t know was possible, with 250+ shops and restaurants in Kensington and river pathways stemming from one end of the city to the other. Now in construction, our sales center is open for viewings by private appointment. With only 44 residences, don’t miss this once in a lifetime opportunity to live at the most interesting corner in Calgary.

Features
: Central
: Central Air, Sep. Hvac Units
: Cats Ok, Dogs Ok
: Electric
: Deck, Patio
: Heated Garage, Secured, Titled, 220 Volt Wiring, Underground, Gated, Parkade
: Dishwasher, Dryer, Microwave, Range Hood, Refrigerator, Washer, Gas Stove
: Other
: Built-in Features, Closet Organizers, Double Vanity, Kitchen Island, Open Floorplan, Walk-in Closet(s), Quartz Counters, Natural Woodwork, Storage
: No Stairs/one Level
: Park, Playground, Schools Nearby, Shopping Nearby, Street Lights, Walking/bike Paths, Sidewalks, Pool, Tennis Court(s)
: Laundry Room, In Unit
: Views
: Waterfront, River Front
Address Map
Alberta
Calgary
Calgary
T2N4T3
10A
100
Street
0
W115° 54' 47.3''
N51° 3' 7.7''
: Hillhurst
905, 100 10A Street NW
E
MLS Addon
C301200

Residential For Sale

100 10A Street, Calgary, Alberta T2N4T3

3 Bedrooms
3 Bathrooms
2,230 Sqft
Visits : 17 in 76 days
$4,000,000
Listing ID #A2251908
Basic Details
Property Type : Residential
Property Sub Type : Apartment
Listing Type : For Sale
Listing ID : A2251908
Price : $4,000,000
Bedrooms : 3
Bathrooms : 3
Half Bathrooms : 0
Square Footage : 2,230 Sqft
Year Built : 2027
Lot Area : 0 Acre
Status : Active
Days On Market : 194
Agent info
Contact Agent