Reset
More options

Property Description

Exceptional main-floor commercial condo located in the heart of the Beltline, one of Calgary’s most vibrant and walkable urban communities, known for its strong daytime and evening foot traffic.
Located in the Nova Building, part of a 550-unit condominium complex on 12 Avenue SW, this highly visible unit benefits from a built-in residential customer base and excellent exposure along busy 12 Avenue.
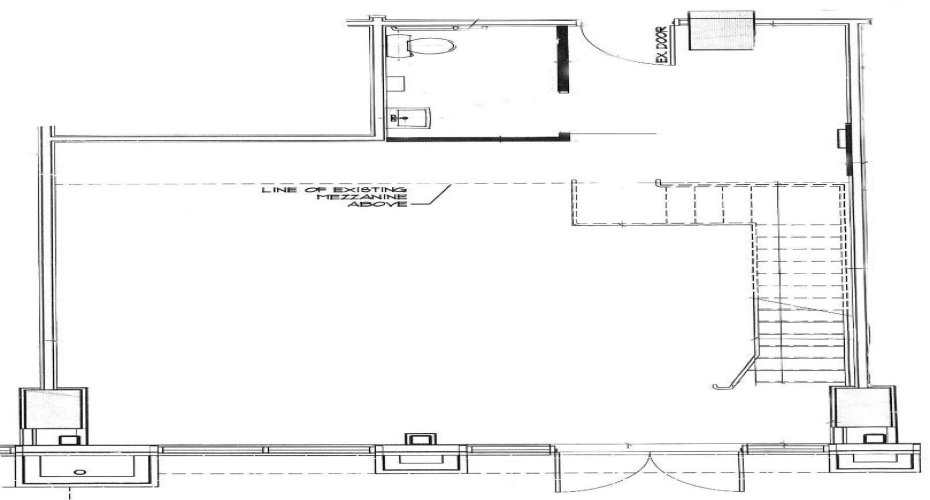
The open-concept main floor features dramatic double-height windows, filling the space with natural light and creating an inviting atmosphere. The flexible layout is ideal for retail, office, or professional services. A bright mezzanine-level office overlooks the main floor, providing an open, connected workspace perfect for administrative or consulting use.
A prime opportunity for owner-users or investors. Book your showing today. See attached brochure for more details.

Address Map
Alberta
Calgary
Calgary
T2R 0P4
12
1118
Avenue
0
W115° 54' 44.6''
N51° 2' 32.6''
: Kincora
102, 1118 12 Avenue SW
E
MLS Addon
C138805

Commercial For Sale

1118 12 Avenue, Calgary, Alberta T2R 0P4

0 Bedrooms
0 Bathrooms
0 Sqft
Visits : 4 in 77 days
$605,000
Listing ID #A2280718
Basic Details
Property Type : Commercial
Property Sub Type : Mixed Use
Listing Type : For Sale
Listing ID : A2280718
Price : $605,000
Bedrooms : 0
Bathrooms : 0
Half Bathrooms : 0
Square Footage : 0 Sqft
Year Built : 2008
Lot Area : 0 Acre
Status : Active
Days On Market : 11
Agent info
Contact Agent