Reset
More options

Property Description

This home is currently under construction. Photos are for representation purposes only and are not of the actual property. Finishes, features, and specifications may vary.

Introducing a striking new luxury residence designed for elevated family living, featuring a triple car garage, a full-width rear deck backing on RIDGE
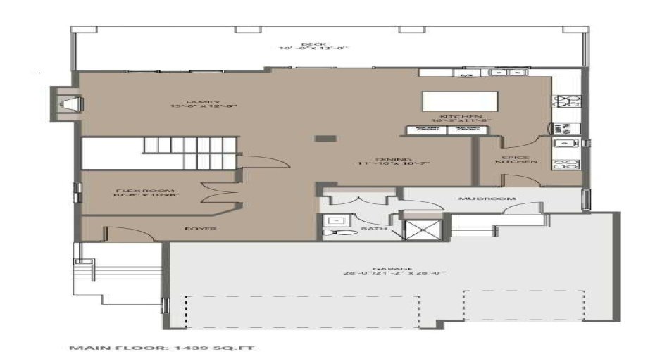
The main level makes an immediate statement with a dramatic open-to-above family room, creating a bright, airy atmosphere ideal for both everyday living and entertaining. Designed with 9-foot ceilings and 8-foot doors, this floor includes a main-floor bedroom and full bathroom, perfect for guests or multigenerational living. The custom kitchen is a true showpiece, featuring fully customized cabinetry, quartz countertops, built-in appliances, and a premium fridge and freezer combination. A spice kitchen with pantry adds exceptional functionality, while the mudroom with built-in bench and MDF shelving throughout closets keeps daily life organized. Step outside to a full-width deck spanning the entire rear of the home, ideal for hosting or relaxing outdoors.

The upper level offers a thoughtfully designed family layout with four bedrooms, three full bathrooms, a dedicated laundry room, and a spacious bonus room. The bonus room features a tray ceiling, mirrored in the primary bedroom, adding architectural depth and elegance. Secondary bedrooms are connected by a Jack & Jill bathroom, while the primary suite serves as a private retreat with a walk-in closet and a spa-inspired ensuite.

The exterior is finished with a refined blend of Hardie Board siding and smooth panel detailing, complemented by LED pot lighting that enhances curb appeal day and night.

Sophisticated, spacious, and thoughtfully designed—this home delivers luxury, comfort, and functionality in every detail.

Features
: Forced Air
: Full
: Gas
: Deck, Porch
: Triple Garage Attached, Driveway
: Dishwasher, Microwave, Refrigerator, Stove(s), Built-in Electric Range
: Private Yard
: Built-in Features, High Ceilings, Kitchen Island, No Animal Home, No Smoking Home, Open Floorplan, Walk-in Closet(s), Quartz Counters, Soaking Tub
: Shopping Nearby
: Laundry Room, Upper Level
: Back Yard, Rectangular Lot
Address Map
Alberta
Rocky View County
Cochrane
T4C 0X8
Sunvalley
17
View
0
W115° 32' 40.5''
N51° 12' 41.8''
: Sunset Ridge
17 Sunvalley View
W
MLS Addon
C282000

Residential For Sale

17 Sunvalley View, Cochrane, Alberta T4C 0X8

4 Bedrooms
4 Bathrooms
3,044 Sqft
Visits : 4 in 14 days
$1,190,000
Listing ID #A2294795
Basic Details
Property Type : Residential
Property Sub Type : Detached
Listing Type : For Sale
Listing ID : A2294795
Price : $1,190,000
Bedrooms : 4
Bathrooms : 4
Half Bathrooms : 0
Square Footage : 3,044 Sqft
Year Built : 2025
Lot Area : 0.12 Acre
Status : Active
Days On Market : 0
Agent info
Contact Agent