Reset
More options

Property Description

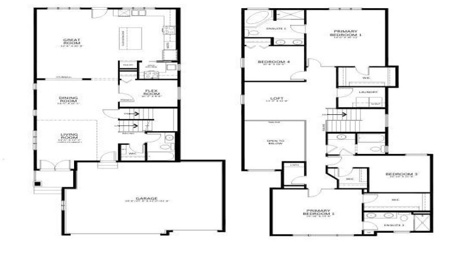
Welcome to the Tivoli III by Genesis Builders Group, an exceptional 2-storey home offering 2,883 sq ft of thoughtfully designed living space, with a builder-proposed completion of December 2026. This stunning residence combines modern luxury with everyday functionality, perfect for growing families and those who love to entertain. The striking exterior features durable Hardie Board siding and a grand presence highlighted by 8’ double front entrance doors.

Step inside to a bright and spacious foyer that opens into a beautifully designed main level with 9’ ceilings, 8’ passage doors, and luxury vinyl plank flooring throughout, complemented by carpeted stairs for added comfort. The open-concept layout is elevated by a dramatic open-to-below feature, filling the home with natural light and creating a sense of grandeur. At the heart of the home, the great room is warm and inviting, complete with an electric fireplace with tile surround and pot lights that enhance the ambiance.

The chef-inspired loaded kitchen is designed to impress, featuring ceiling-height cabinetry, a gas cooktop range, a large island, and ample workspace, along with a fully equipped spice kitchen—ideal for keeping your main kitchen pristine while preparing meals. A versatile flex room with elegant 8’ glass French doors offers the perfect space for a home office or guest room. A rare and highly desirable feature, the main level also includes a bedroom paired with a full 4-piece bathroom—perfect for guests, extended family, or multi-generational living. The main floor is completed by a convenient mudroom with a man door to the garage, an 8’ garage entry door into the home, and a thoughtfully placed side entrance for added flexibility and future potential.

Upstairs, the home continues to impress with spacious bedrooms designed for comfort and privacy. Each primary suite is a true retreat, featuring tray ceilings, luxurious ensuites with tiled shower bases, shower pot lights, and refined finishes throughout. Additional bedrooms are generously sized and include swing closet doors for enhanced functionality. A well-appointed laundry room with a window, along with hot and cold rough-ins and a drain, adds everyday convenience to the upper level.

The 9’ basement foundation offers incredible potential for future development and includes hot and cold rough-ins with a drain for a future bar, making it ideal for creating an entertainer’s dream lower level. Modern living is further enhanced with smart home technology and practical upgrades throughout, including a BBQ gas line for seamless outdoor enjoyment.

Blending style, space, and thoughtful design, this Tivoli III is a rare opportunity to own a truly exceptional home. Don’t miss your chance—book your showing today!

Features
: Forced Air
: Full
: Triple Garage Attached, Driveway, On Street, Garage Faces Front
: See Remarks
: Rain Gutters, Lighting, Bbq Gas Line
: Built-in Features, Double Vanity, High Ceilings, Kitchen Island, No Animal Home, No Smoking Home, Open Floorplan, Pantry, Walk-in Closet(s), Quartz Counters, Smart Home, Soaking Tub, French Door, Recessed Lighting, Tray Ceiling(s)
: Park, Playground, Schools Nearby, Shopping Nearby, Street Lights, Walking/bike Paths, Lake, Sidewalks
: Laundry Room, Upper Level
: Back Yard, Lawn, Street Lighting, Front Yard, Rectangular Lot, Interior Lot
Address Map
Alberta
Chestermere
Chestermere
T1X 3G4
Dawson
646
Way
0
W114° 8' 54''
N51° 1' 55.6''
: Dawson's Landing
646 Dawson Way
W
MLS Addon
C316900

Residential For Sale

646 Dawson Way, Chestermere, Alberta T1X 3G4

5 Bedrooms
4 Bathrooms
2,883 Sqft
Visits : 7 in 5 days
$995,000
Listing ID #A2295781
Basic Details
Property Type : Residential
Property Sub Type : Detached
Listing Type : For Sale
Listing ID : A2295781
Price : $995,000
Bedrooms : 5
Bathrooms : 4
Half Bathrooms : 0
Square Footage : 2,883 Sqft
Year Built : 2026
Lot Area : 0.12 Acre
Status : Active
Days On Market : 9
Agent info
Contact Agent