Reset
More options

Property Description

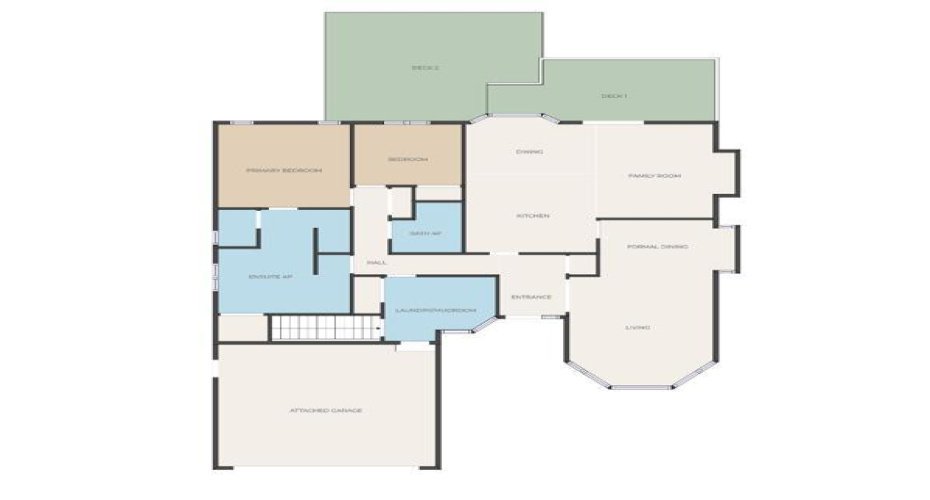
Large renovated bungalow in Suntree! So much space (almost 3000 sf developed) and over $135 000 of renovations in the last 2 years! The previous owners replaced shingles in 2017 and windows in 2021 and the current owners removed poly-b, replaced 2 furnaces, added AC, completely renovated the kitchen, added a huge ensuite and replaced all the flooring (LVP). Main floor features living/dining room with French doors. The renovated kitchen features dekton countertops, oversized upper cabinets and plenty of lower pot drawers. Gas stove, fridge with water dispenser, and OTR microwave are all less than 2 years old. Cozy family room has gas fireplace and opens up onto the south facing covered deck with sun shades. Lower deck has been extended if you want to soak up the sun! Primary bedroom now has a huge ensuite/walkin closet with large shower, double sinks and private WC. (Easy to convert this room back to a 3rd main floor bedroom). Second main floor bedroom is used as a home office. Main bathroom was also renovated. Downstairs in the sunshine basement, you will find 2 more bedrooms , 4 piece bathroom and rec room with kitchenette. Perfect for teens looking for their own space to hang out. Other improvements in the last 2 years include central vac, garage door, additional attic insulation, baseboard, casing, doors, lighting…the list goes on!

Features
: Forced Air, High Efficiency
: Central Air
: Full
: Fenced
: Gas
: Deck, Porch
: Double Garage Attached
: Bar Fridge, Central Air Conditioner, Dishwasher, Dryer, Refrigerator, Washer, Window Coverings, Freezer, Gas Stove
: Private Yard
: Central Vacuum, Closet Organizers, No Smoking Home, Walk-in Closet(s), Bar
: Park, Playground, Schools Nearby, Shopping Nearby, Walking/bike Paths, Sidewalks
: Laundry Room, Main Level, Common Area
: Low Maintenance Landscape, Landscaped, Level, Rectangular Lot
Address Map
Alberta
Foothills County
Okotoks
T1S 1M6
Sunset
7
Crescent
0
W114° 1' 44.6''
N50° 44' 9.8''
: Suntree
7 Sunset Crescent
N
MLS Addon
C235210

Residential For Sale

7 Sunset Crescent, Okotoks, Alberta T1S 1M6

4 Bedrooms
3 Bathrooms
1,624 Sqft
Visits : 5 in 3 days
$737,800
Listing ID #A2300092
Basic Details
Property Type : Residential
Property Sub Type : Detached
Listing Type : For Sale
Listing ID : A2300092
Price : $737,800
Bedrooms : 4
Bathrooms : 3
Half Bathrooms : 0
Square Footage : 1,624 Sqft
Year Built : 1991
Lot Area : 0.15 Acre
Status : Active
Days On Market : 15
Agent info
Contact Agent