Reset
More options

Property Description

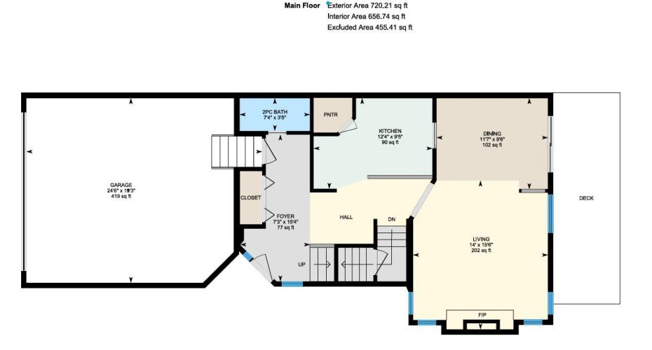
OPEN HOUSE THIS SATURDAY APRIL 25 FROM 1-3 PM! Exceptionally rare opportunity to own an AIR-CONDITIONED END UNIT townhome with an OVERSIZED DOUBLE GARAGE (24X19). and a WALKOUT basement! This lovely property sits atop the ridge and offers UNOBSTRUCTED VIEWS of the park beyond. With a fully finished WALKOUT basement, the NATURAL LIGHT is simply spectacular on every level. Inside, you’ll appreciate the solid hardwood floors, and the modern kitchen with stone counters. The spacious dining room has doors that lead to a full width walkout deck. The living room has custom built-ins + a gas fireplace and an abundance of windows. With over 2200 square feet of developed living space, this is a well laid-out design. Upstairs, the primary suite is well appointed with a walk-in closet and a 4 piece ensuite. A second large bedroom with a sitting area is on the opposite end, with UPPER LAUNDRY, and a 4 piece bath completing this level. The basement offers a large rec room with a cozy gas fireplace and sliding doors that lead to a back patio. A 3rd room and a 3 piece bath finish off the basement. The backyard is fenced with a green space and access to the park beyond. This is a well run complex with a reserve fund over $800,000 as of February 2026. Pet-friendly complex, subject to Board approval. Any replacement of exterior windows or doors are the responsibility of the corporation. Replacement is slated for 2027 and 2028 according to the reserve fund. Condo fees are $389.02/month. Available for immediate occupancy. This is by far the best location in the complex!

Features
: Forced Air
: Central Air
: Full
: Fenced
: Restrictions, Yes
: Gas
: Patio, Balcony(s)
: Double Garage Attached
: Dishwasher, Garage Control(s), Microwave, Refrigerator, Stove(s), Washer/dryer
: Private Entrance
: Bookcases, Breakfast Bar, See Remarks, Stone Counters, Recessed Lighting
: Park, Playground, Schools Nearby, Shopping Nearby, Street Lights, Walking/bike Paths, Other, Sidewalks
: Upper Level, In Unit
: Back Yard, City Lot
Address Map
Alberta
Calgary
Calgary
T3G 5M7
Citadel Estates
107
Manor
0
W115° 48' 36.3''
N51° 8' 46.2''
: Citadel
107 Citadel Estates Manor NW
Nw
MLS Addon
C030601

Residential For Sale

107 Citadel Estates Manor, Calgary, Alberta T3G 5M7

2 Bedrooms
4 Bathrooms
1,505.14 Sqft
Visits : 2 in 3 days
$519,900
Listing ID #A2299906
Basic Details
Property Type : Residential
Property Sub Type : Row/townhouse
Listing Type : For Sale
Listing ID : A2299906
Price : $519,900
Bedrooms : 2
Bathrooms : 4
Half Bathrooms : 1
Square Footage : 1,505.14 Sqft
Year Built : 2002
Lot Area : 0.07 Acre
Status : Active
Days On Market : 0
Agent info
Contact Agent