Reset
More options

Property Description

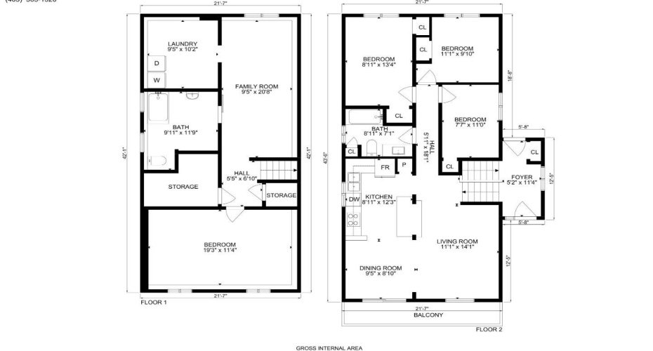
ARE YOU LOOKING FOR SOMETHING A LITTLE DIFFERENT? This neat & clean Bassano bi-level is not a cookie-cutter home & in all of the best ways. You might expect a typical, tiny entry & this one is more like a spacious foyer with a closet, place to sit down & a second exterior door to access the fenced back yard. Bright, open kitchen, dining & living area has the perfect blend of privacy & wall area for functional furniture placement but flexibility to designate more space as living room or eating area. All kitchen appliances are new within last 3 years. You will enjoy the workspace, pantry & being able to look into the living area without seeing into the kitchen from the living room and front door. Eating bar / buffet line is wonderful for larger family gatherings. Sliding doors to front deck for easy bbq-ing & outdoor dining. Main bath has been tastefully renovated with attractive new tub & surround, vanity & attractive quartz countertop. This bathroom closet for lots of towels & family toiletry storage will change your life! Primary bedroom with dual closets accommodates king bed; 2 smaller bdrms have good closets. Modern, easy maintenance flooring throughout main is a warm, traditional colourway that compliments all of your wood furniture. Basement is developed with enormous bedroom, perfect for older children sharing or long stay guests, family room, 3 pc bath, storage & laundry. Family room is bright & with higher ceilings; it’s just the spot for your crew to congregate. Laundry / storage room has plenty of space for deep freeze, extra fridge & bulk shop storage. Seller has 2 brand new exterior doors just waiting for the contractor to install. Exterior is low maintenance with durable metal siding. Private, fully fenced yard is a blank canvas for your landscape plans. Extra long driveway for your RV, boat & work truck that you like to park off street. This home is high on value; compare the size & improvements to others on market & see the difference. Don’t delay to book your private showing; listing inventory is low in Bassano. View the virtual tour by clicking on the “video” button. You can be into your new home before summer!

Features
: Forced Air, Natural Gas
: Full
: Fenced
: Deck
: Single Garage Detached
: Dishwasher, Refrigerator, Electric Stove, Washer/dryer
: Private Yard
: No Smoking Home
: Park, Playground, Schools Nearby, Shopping Nearby, Street Lights, Airport/runway, Sidewalks, Golf
: In Basement
: Back Yard, Back Lane
Address Map
Alberta
Newell, County of
Bassano
T0J0B0
4
427
Street
0
W113° 32' 2.4''
N50° 47' 24.4''
427 4 Street
N
MLS Addon
SCCOM

Residential For Sale

427 4 Street, Bassano, Alberta T0J0B0

4 Bedrooms
2 Bathrooms
1,012 Sqft
Visits : 1 in 1 days
$259,900
Listing ID #A2302296
Basic Details
Property Type : Residential
Property Sub Type : Detached
Listing Type : For Sale
Listing ID : A2302296
Price : $259,900
Bedrooms : 4
Bathrooms : 2
Half Bathrooms : 0
Square Footage : 1,012 Sqft
Year Built : 1977
Lot Area : 0.15 Acre
Status : Active
Days On Market : 0
Agent info
Contact Agent