Reset
More options

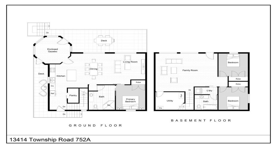
Property Description

This cottage has 2,120 square feet of finished living space within the exclusive gated community of Hilliards Bay Estates, situated on Lesser Slave Lake, Alberta’s second-largest lake.
The second floor features an inviting kitchen, spacious living room, and master bedroom, all designed to maximize the lake views. The walk-out basement includes two additional bedrooms, a full bathroom, and a cozy family room, making it perfect for gatherings. You’ll appreciate the generous front entrance with ample storage for outerwear, as well as a walk-in pantry and a large upper deck for outdoor enjoyment. The home comes furnished and features convenient amenities such as hot water on demand and heavy-duty recycled rubber tiles in the walk-out area, ensuring durability and low maintenance.
An octagonal shelter, or enclosed gazebo, on the upper deck, is equipped with a fire pit, creating an ideal spot for friends and family to gather and enjoy each other’s company. The property is thoughtfully landscaped with mature trees for added privacy and includes a dedicated outdoor fire pit area.
Additionally, there is a shed for extra storage, making this property both functional and inviting with minimal yard upkeep required. Call today to book your lakefront resort tour. Click the Video Link to see more.

Features
: Forced Air
: Full
: Deck, See Remarks
: Dishwasher, Refrigerator, Stove(s), Washer/dryer
: See Remarks
: Playground, Lake, Fishing, Gated
: In Basement
: Low Maintenance Landscape, Sloped Down
Address Map
Alberta
Big Lakes County
Grouard
T0G 1C0
Township Road 752A
13414
0
W116° 1' 54.6''
N55° 30' 35.6''
13414 Township Road 752A
S
MLS Addon
gpgrasshp

Residential For Sale

13414 Township Road 752A, Grouard, Alberta T0G 1C0

3 Bedrooms
2 Bathrooms
1,060 Sqft
Visits : 8 in 32 days
$524,900
Listing ID #A2169203
Basic Details
Property Type : Residential
Property Sub Type : Detached
Listing Type : For Sale
Listing ID : A2169203
Price : $524,900
Bedrooms : 3
Bathrooms : 2
Half Bathrooms : 0
Square Footage : 1,060 Sqft
Year Built : 2017
Lot Area : 0.22 Acre
Status : Active
Days On Market : 546
Agent info
Contact Agent