Reset
More options

Property Description

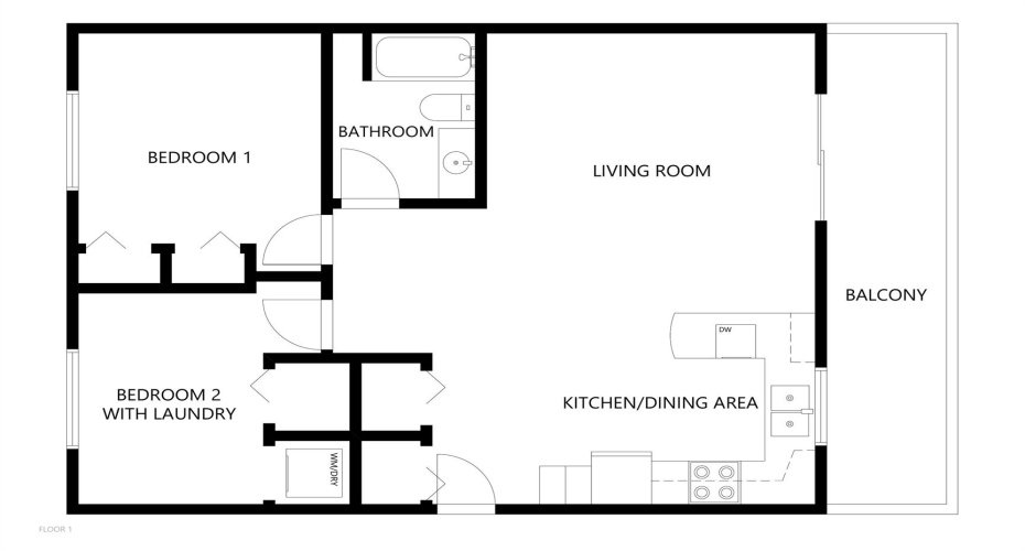
Easy living in this condo in Grimshaw! You will have no snow to shovel or lawn to look after! There is shared green space in a fenced yard which you have the use of and East facing patio for you to enjoy. Keep your vehicle safe, secure and out of the elements in a shared garage which comes with one assigned space. Additional parking for guests is available outside. Inside the unit you will find 2 bedrooms, one with a laundry closet, a spacious 4-piece bathroom and a nice open kitchen dining and living area. The carpet has recently been replaced in both bedrooms. This is a great option for anyone who wants to own their own home but doesn’t want all the work and expense that comes with exterior maintenance. 360 virtual tour is now available in the media section, floor plans are now available in photos section.

Features
: Baseboard
: Balcony(s)
: Quad Or More Attached, Assigned
: Dishwasher, Refrigerator, Electric Stove, Washer/dryer Stacked
: Other
: See Remarks
: Playground, Schools Nearby, Pool
: See Remarks
Address Map
Alberta
Peace No. 135, M.D. of
Grimshaw
T0H 1W0
42
5101
Avenue
0
W118° 23' 16.2''
N56° 10' 55.8''
5, 5101 42 Avenue
E
MLS Addon
9806

Residential For Sale

5101 42 Avenue, Grimshaw, Alberta T0H 1W0

2 Bedrooms
1 Bathrooms
830 Sqft
Visits : 9 in 186 days
$145,000
Listing ID #A2176854
Basic Details
Property Type : Residential
Property Sub Type : Apartment
Listing Type : For Sale
Listing ID : A2176854
Price : $145,000
Bedrooms : 2
Bathrooms : 1
Half Bathrooms : 0
Square Footage : 830 Sqft
Year Built : 2010
Lot Area : 0 Acre
Status : Active
Days On Market : 363
Agent info
Contact Agent